Additional
Additional
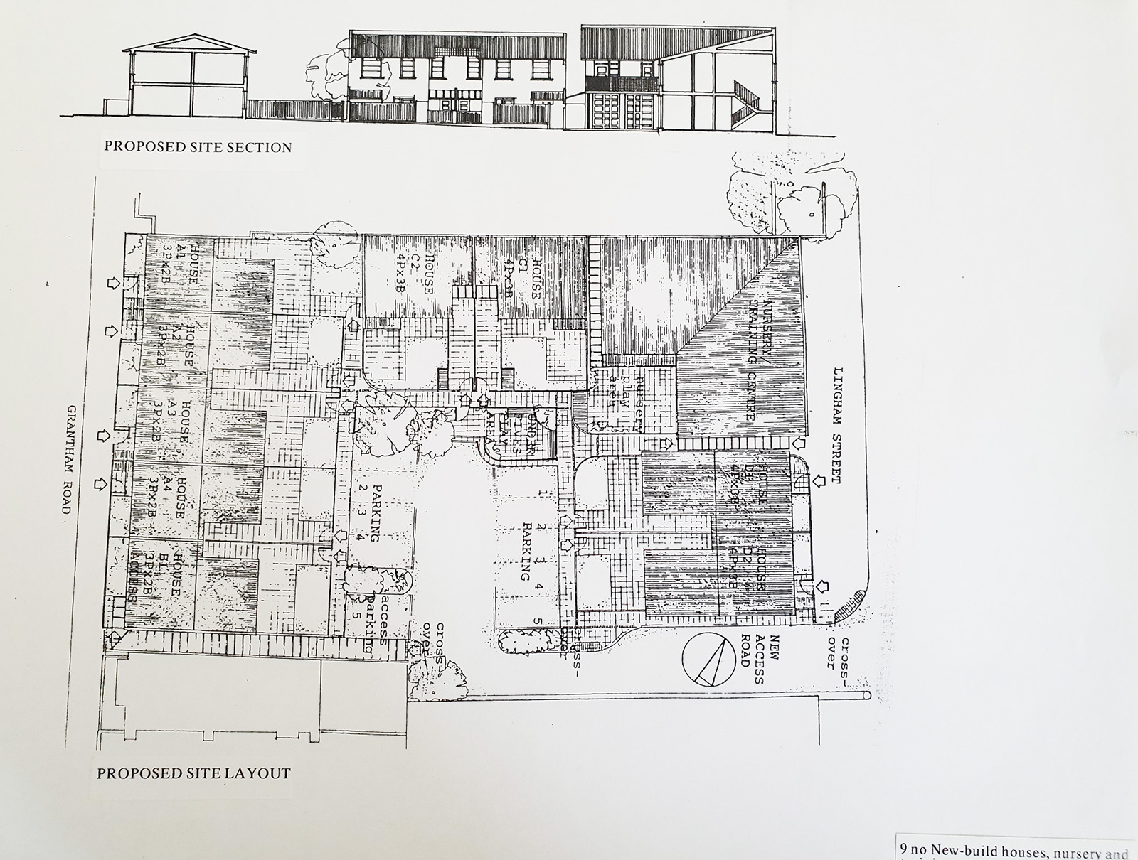
Matrix undertook many feasibility studies for women’s and community groups, and many of these projects were not realised, or were given to other architects. In addition, there are some completed projects with very few remaining records. Found artefacts for this multitude of work are collected here..




















